 |
|
| Seite erweitert Juli 2025 |
 |
Kontakt |
 |
|
 |
Programmübersicht |
 |
|
 |
Bestelltext |
 |
|
|
| Infos auf dieser Seite |
... als pdf |
 |
|
 |
 |
Eingabeoberfläche .............. |
 |
|
 |
Anschluss Träger-Stütze ..... |
 |
|
 |
Basisverbindungen ............. |
 |
|
 |
Rechenlaufsteuerung .............. |
 |
|
 |
Komponentenmethode ........... |
 |
|
 |
Schraubenverbindungen ......... |
 |
|
 |
Profile und Verstärkungen ....... |
 |
|
 |
Tragfähigkeitsnachweis ........... |
 |
|
 |
Schrauben, Niete, Bolzen ....... |
 |
|
 |
Anschlussparameter .............. |
 |
|
 |
Nachweis Schweißnähte ........ |
 |
|
 |
Schweißverbindungen ............. |
 |
|
 |
Schnittgrößen ........................ |
 |
|
 |
Nachweis Stegsteifen ............. |
 |
|
 |
T-Stummel mit Zug ................. |
 |
|
 |
Schnittgrößenimport .............. |
 |
|
 |
Grundkomponenten ................ |
 |
|
 |
T-Stummel vier Schrauben ...... |
 |
|
 |
Teilschnittgrößen ................... |
 |
|
 |
Lasteinleitung ........................ |
 |
|
 |
Stahlsorten ........................... |
 |
|
 |
Ergebnisübersicht .................. |
 |
|
 |
Ermüdung ............................. |
 |
|
 |
Ausdrucksteuerung ................ |
 |
|
| |
 |
Beispiel mit Erläuterungen ...... |
 |
|
 |
nationale EC-Anhänge ............ |
 |
|
|
|
|
 |
|
 |
EC 3 - Stahlkonsole |
| Mit dem Programm 4H-EC3SK,
Stahlkonsole, können an Stützen angeschlossene
Konsolen mit Doppel-T-Querschnitten nach Eurocode 3 nachgewiesen werden. |
|
|
 |
|
| Bild vergrößern |
 |
|
|
|
|
| Die zugehörigen Eingabeparameter werden
in eigenen Registerblättern verwaltet, die über
folgende Symbole die dahinter liegende Parameterauswahl kenntlich machen. |
|
 |
|
| Im ersten Registerblatt werden die
Anordnung der Konsole an der Stütze, Stahlsorte
und Materialsicherheitsbeiwerte sowie der Berechnungsablauf festgelegt. |
| Die zu führenden Nachweise können ausgewählt werden. |
| Es wird festgelegt, ob die Konstruktion
im Registerblatt oder in einem separaten Fenster
am Bildschirm dargestellt werden soll. |
| Optional wird die Verbindung
zur visuellen Kontrolle maßstäblich
im Registerblatt dargestellt. |
|
|
|
 |
|
| Im zweiten Registerblatt werden Stützen- und Konsolprofil ausgewählt. |
| Es sind nur Doppel-T-Profile zugelassen;
sie werden am Bildschirm maßstäblich visualisiert. |
| Stützenprofile können durch
Stegsteifen oder Stegbleche verstärkt werden. |
| Im Konsolprofil können im Bereich
der Lasteinleitung Stegsteifen angeordnet werden. |
| Ist der Anschluss nicht gevoutet,
können zur Verstärkung Dreieckrippen verwendet werden. |
|
|
|
 |
|
| Im dritten und vierten Registerblatt wird die Verbindung Konsole-Stütze
je Seite konstruiert, d.h. es wird festgelegt, ob ein geschraubter Stirnblech-
oder ein geschweißter Anschluss vorliegt. |
Die zur Berechnung notwendigen Parameter
zur Anordnung der Anschlussbleche bzw. -profile
werden abgefragt. |
| Des Weiteren können Vouten festgelegt werden. |
| Je nach Anschlussart sind Schraubensorte und -abstände
sowie die Schweißnahtdicken anzugeben. |
| Optional wird die Verbindung zur
visuellen Kontrolle maßstäblich im Registerblatt dargestellt. |
|
|
|
 |
|
| Die Schnittgrößen
werden im fünften und sechsten Registerblatt festgelegt. |
| Sie sind für den Nachweis der Träger-Stützen-Verbindung
oder der Lasteinleitung auf den Grenzzustand der Tragfähigkeit
(GZT) oder für den Nachweis der Ermüdung auf den
Grenzzustand der Ermüdung (GZE) bezogen. |
| Die Schnittgrößen können entweder als Konsollasten
aus dem Lastträger einwirken oder als Knotenschnittgrößen
auf den Schnittpunkt der Systemachsen bezogen sein. |
|
|
|
 |
|
| Im siebten Registerblatt werden
die Ergebnisse (Anschluss, Lasteinleitung
und Ermüdung) lastfallweise und detailliert
im Überblick dargestellt. |
| Für die GZT-Nachweise ist die maßgebende
Lastkombination gekennzeichnet und kann direkt am Bildschirm angezeigt werden. |
|
|
|
 |
|
| Weiterhin ist zur vollständigen
Beschreibung der Berechnungsparameter der dem Eurocode
zuzuordnende nationale Anhang zu wählen. |
| Über den NA-Button wird das entsprechende Eigenschaftsblatt aufgerufen. |
|
|
|
 |
|
| Im Eigenschaftsblatt, das nach Betätigen
des Druckeinstellungs-Buttons
erscheint, wird der Ausgabeumfang der Druckliste festgelegt. |
|
|
|
 |
|
Das Statikdokument kann durch Betätigen
des Visualisierungs-Buttons am Bildschirm
eingesehen werden. |
|
|
|
 |
|
| Über den Drucker-Button
wird in das Druckmenü gewechselt, um das Dokument auszudrucken. |
| Hier werden auch die Einstellungen
für die Visualisierung vorgenommen. |
|
|
|
 |
|
| Über den Pläne-Button
wird das pcae-Programm zur Planbearbeitung aufgerufen. |
| Der aktuelle Anschluss wird im pcae-Planerstellungsmodul
dargestellt, kann dort weiterbearbeitet, geplottet oder im DXF-Format exportiert werden. |
|
|
|
 |
|
| Über den Hilfe-Button
wird die kontextsensitive Hilfe zu den einzelnen Registerblättern aufgerufen. |
|
|
|
 |
|
| Das Programm kann mit oder ohne Datensicherung verlassen werden. |
| Bei Speicherung der Daten wird die
Druckliste aktualisiert und in das globale Druckdokument eingefügt. |
|
|
|
|
|
|
 |
|
 |
Im ersten Registerblatt werden die
Anordnung der Konsole an der Stütze, Stahlsorte
und Materialsicherheitsbeiwerte sowie der Berechnungsablauf
festgelegt. |
|
|
| Stahlsorte |
 |
| Jedem Verbindungselement kann ein eigenes Material zugeordnet werden. |
Der Übersichtlichkeit halber kann an dieser Stelle
eine einheitliche Stahlgüte für die Verbindungsbleche (Stütze,
Träger, Stirnblech, Stegbleche oder Stegsteifen,
Futterbleche) gewählt werden. |
|
|
|
| Da die Beschreibung der Stahlparameter für Verbindungen
nach EC 3 programmübergreifend identisch ist, wird auf die
allgemeine Beschreibung der Stahlsorten verwiesen. |
|
| Materialsicherheitsbeiwerte |
 |
| Der Nachweis der Verbindung der Konsole an die -Stütze
erfolgt n. EC 3-1-8 mit folgenden Materialsicherheitsbeiwerten |
|
|
|
| Ist der Ermüdungsnachweis (s.u.) aktiviert, werden
die Materialsicherheitsbeiwerte n. EC 3-1-9 verwendet. |
|
|
|
| Die Werte können entweder den entsprechenden Normen
(s. Nationaler Anhang)
entnommen oder vom Anwender vorgegeben werden. |
|
| Anschlusstyp |
 |
 |
|
| Der Anschluss einer
Konsole an eine durchlaufende Stütze kann rechts, links oder beidseitig
erfolgen. |
| Bei beidseitigen Anschlüssen können sich
die Trägerprofile sowie die Verbindungsarten unterscheiden. |
| Da sich die Systemachsen der Konsolen und Stütze
in einem Knotenpunkt treffen sollten, können die Konsolen versetzt
angeordnet werden. Das kommt besonders bei gevouteten Konsolen zum
Tragen. |
|
| Nachweise |
 |
| Das Programm 4H-EC3SK weist die Tragfähigkeit
einer Stahlkonsole nach, die an eine Stütze angeschlossen ist. |
| Dabei werden je Anschlussgeometrie (s. Register
3,4) nur die relevanten Tragfähigkeiten ermittelt
und entsprechenden Nachweise geführt. |
| Es gilt |
 |
| die Tragfähigkeit der Konsole-Stütze-Verbindung
wird mit der Komponentenmethode n. EC 3-1-8 nachgewiesen |
|
 |
| die Abscher-/Lochleibungstragfähigkeit
aus Querkraftbeanspruchung ist nur für geschraubte Verbindungen relevant |
|
 |
| bei überwiegender Normalkraft (kommt i.A. nicht vor) wird die Verbindung mit Teilschnittgrößen nachgewiesen |
|
 |
| optional kann ein Schweißnahtnachweis geführt werden. |
| Dabei kann zwischen dem richtungsbezogenen
und dem vereinfachten Verfahren unterschieden werden. |
|
 |
| die Stegsteifen (Rippen) werden nachgewiesen |
|
 |
| optional kann ein Querschnittsnachweis des
Trägers und der Stütze in der Anschlussebene durchgeführt werden. |
| Die Querschnittstragfähigkeiten
können mit dem Elastisch-Plastischen und Elastisch-Elastischen Verfahren berechnet werden. |
|
 |
| der Nachweis der Lasteinleitung erfolgt für eine Trägerkreuzung am Ende des Konsolträgers |
|
 |
| die Querschnittstragfähigkeit ist dann Elastisch-Elastisch nachzuweisen |
|
 |
| sind Quersteifen im Bereich der Lasteinleitiung
angeordnet, werden sie zusätzlich nachgewiesen |
|
 |
| der Ermüdungsnachweis wird n. EC 3-1-9 sowohl für
die Konsole-Stütze-Verbindung als auch für
die Lasteinleitungsstelle geführt |
|
 |
| optional kann bei Druckspannung der Mittelspannungseinfluss berücksichtigt werden |
|
|
|
|
|
|
| Verschiedenes |
 |
|
|
| Die Eingabedaten können über
die Copy-Paste-Funktion exportiert bzw. temporär gesichert und wieder importiert bzw. geladen werden. |
Dazu ist der
aktuelle Datenzustand im abgebenden Bauteil über den Button Daten exportieren in
die
Zwischenablage zu kopieren und anschließend über den Button Daten
importieren in das aktuell geöffnete
Bauteil aus der Zwischenablage zu übernehmen. |
|
|
|
| Das Programm 4H-EC3SK bietet
die Möglichkeit, die zur visuellen Kontrolle vorhandenen
Bildschirmgraphiken entweder innerhalb des jeweiligen Eingabefensters
anzuordnen oder in einem separaten Fenster anzuzeigen, um die
Eingaberegister optimal für die Dateneingabe auszunutzen. |
|
|
|
| Der Anschluss wird zur visuellen Kontrolle bei der Eingabe
am Bildschirm dargestellt; Schweißnähte, Schrauben, Profile
und Abstände sind maßstabsgetreu visualisiert. |
| Ebenso sind die wesentlichen Parameter
der Abmessungen bezeichnet. |
|
 |
|
|
 |
|
 |
im Register 2 befinden
sich die Angaben zum Stützenprofil und zu den Konsolprofilen. |
|
|
 |
|
| Bild vergrößern |
 |
|
|
|
|
| Profile |
 |
|
| Die Parameter der Anschlussprofile können entweder
über den pcae-eigenen Profilmanager in das Programm importiert werden oder als parametrisiertes
Stahlprofil eingegeben werden. |
|
|
|
| Um ein Profil aus dem Angebot des Profilmanagers zu
wählen, ist der grün unterlegte Pfeil zu betätigen. |
Das externe Programm wird aufgerufen und ein Profil
kann aktiviert werden. Bei Verlassen des Profilmanagers
werden die
benötigten Daten übernommen und der Profilname protokolliert. |
|
|
|
| Zur Definition eines parametrisierten Profils wird zunächst
seine Klasse über eine Listbox festgelegt, anhand derer bestimmt
wird, welche weiteren Parameter freigelegt werden. |
Das Programm kann Träger-Stützenanschlüsse
mit Doppel-T-Profilen berechnen, die als I, H-,
DIL-, S-, W-Profile
pcae-intern bekannt sind. |
| Andere Profilklassen sind in der Listbox farblich gekennzeichnet
und können als Verbindungselement nicht verwendet werden. |
| Bei gewalzten Profilen werden die Ausrundungsradien,
bei geschweißten Blechprofilen die Schweißnähte zwischen Flansch
und Steg geometrisch berücksichtigt. |
| Bei geschweißten Profilen kann zwischen Kehlnähten
und durchgeschweißten Stumpfnähten unterschieden werden. |
| Diese Schweißnähte werden nicht nachgewiesen. |
|
| Gewalzte Doppel-T-Profile haben einen
einheitlichen Ausrundungswinkel (ro = ru). |
|
Geschweißte Doppel-T-Profile weisen
einheitliche Schweißnähte auf
(au = ao). |
|
 |
|
|
|
|
|
| Verstärkungen |
 |
|
| Stützenprofile können zur Verstärkung
des Stegs mit Stegblechen und/oder Stegsteifen ausgeführt werden. |
| Ebenso können Stegsteifen im Bereich der Lasteinleitung
das Konsolprofil verstärken. |
Außerdem bietet
die Anordnung von Dreieckrippen zwischen Konsol- und Stützenflansch
sowie von Zwischensteifen
im Stützenprofil im Bereich des jeweiligen
Trägers eine weitere Möglichkeit zur Verstärkung der Verbindung. |
|
|
|
| Stegbleche können ein- oder beidseitig angeordnet
werden, wobei sie die gleiche Stahlgüte wie das Profil aufweisen
(EC 3-1-8, 6.2.6.1 (8)) sollten. Weiterhin sollten ihre Abmessungen
folgende Bedingungen erfüllen |
 |
die Breite bs sollte
mindestens so groß sein, dass die Schweißnähte
as um das zusätzliche Stegblech an die Eckausrundung
heranreichen (EC 3-1-8, 6.2.6.1 (9)), jedoch kleiner als
40·ε·ts sein (EC 3-1-8, 6.2.6.1 (13)).
Sie wird vom Programm berechnet und in der Druckliste protokolliert. |
|
 |
die Länge ls sollte so groß
sein, dass sich das zusätzliche Stegblech über die effektive Breite des Steges unter
der Querzugbeanspruchung und der Querdruckbeanspruchung hinaus erstreckt (EC 3-1-8, 6.2.6.1 (10)) |
|
 |
die Dicke ts des zusätzlichen
Stegblechs sollte mindestens der Stützenstegdicke entsprechen
(EC 3-1-8, 6.2.6.1 (11)) |
|
|
|
| Ist eine der Bedingungen nicht eingehalten, erfolgt
der Abbruch des Programms mit entsprechender Fehlermeldung. |
|
| Im Programm 4H-EC3SK werden
Länge, Breite und Stahlgüte des Stegblechs vorbelegt |
 |
| die Stegblechlänge ls wird
gleich der Gesamthöhe
des angeschlossenen Profils gesetzt. Falls zusätzlich
Stegsteifen angeordnet sind, wird die Stegblechlänge in die Steifen eingepasst. |
|
 |
die Stegblechbreite bs wird
entsprechend der Steghöhe des Profils (ohne Ausrundung bzw.
Schweißnahtschenkel) gesetzt |
|
 |
| die Stahlgüte des Stegblechs ist gleich der des Profils |
|
|
| Es besteht die Möglichkeit, die Abmessungen eines
Blechs vom Programm sinnvoll belegen zu lassen, d.h. |
 |
| bei ts = 0 entspricht die Stegblechdicke
der Stegdicke des Profils |
|
|
|
| Die Schweißnahtdicke as beeinflusst den Schweißnahtnachweis |
 |
|
 |
| 0 < as < ts:
Nachweis einer umlaufenden Kehlnaht |
|
 |
| as ≥ ts: Nachweis
einer durchgeschweißten Stumpfnaht |
|
|
|
|
|
| Stegsteifen (Rippen) werden beidseitig an Flansche
und Steg der Stütze bzw. der Konsole angeschweißt. |
Das Stützenprofil kann durch Stegsteifen in Höhe des
Konsolzug- und -druckflanschs ausgesteift werden.
Sie beeinflussen den Nachweis der Träger-Stützenverbindung. |
| Bei geschweißter Verbindung sollte die Dicke der Stützensteifen mindestens der Trägerflanschdicke entsprechen. |
| Das Konsolprofil kann durch Stegsteifen im Einleitungsbereich
der Einzellast ausgesteift werden. Hier entlasten sie den Konsolsteg
beim Nachweis der Lasteinleitung, erzeugen jedoch beim Ermüdungsnachweis
zusätzliche Kerbpunkte. |
|
| Die Abmessungen der Stegsteifen müssen aus konstruktiven Gründen
den folgenden Anforderungen genügen |
 |
| die Länge der Steifen entspricht
der lichten Steghöhe (einschl. Ausrundungen): lst = h - 2·tf |
|
 |
| die Breite der Steifen entspricht
dem lichten Abstand des Flanscharms: bst = (bf - tw)/2 abzgl. 5 mm Toleranz |
|
 |
| die Aussparung der Steifen entspricht dem 1.5-fachen Ausrundungsradius bzw.
der 1.5-fachen Schenkellänge der Schweißnaht des geschweißten Profils |
|
|
|
| Die Stegsteifen werden nachgewiesen. |
|
|
|
| Alternativ zu einer Voute kann eine Dreieckrippe in den Stegachsen
zwischen Konsol- und Stützenflansch angebracht werden. Die
Dreieckrippe dient dazu, die Drucktragfähigkeit des Konsolflanschs zu erhöhen. |
|
|
|
|
|
 |
|
 |
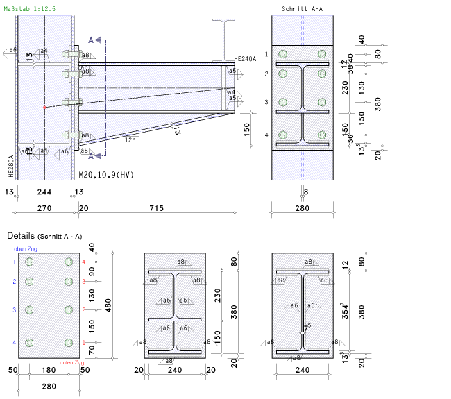
| Register 3 und 4 enthalten Angaben zu den Parametern je Anschlussseite. |
| Der rechte Anschluss wird in Register 3, der linke in Register 4 beschrieben. |
|
|
|
 |
|
| Bild vergrößern |
 |
|
|
|
|
| Anschlusskonfigurationen |
 |
|
| Je nach Konfiguration werden die zur Berechnung des
Anschlusses notwendigen Parameter freigelegt. |
| Folgende Anschlusskonfigurationen werden angeboten |
 |
geschweißter Träger-Stützen-Anschluss |
 |
geschraubter Träger-Stützen-Anschluss, Anschluss über
ein Stirnblech |
|
| Hintergründe und Erläuterungen zum Träger-Stützen-Anschluss
finden Sie hier. |
|
 |
| Das Programm 4H-EC3SK
berechnet nur Träger-Stützenverbindungen
mit durchlaufender Stütze. |
| Es wird keine Rotationssteifigkeit ermittelt. |
|
|
|
|
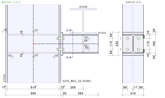
| Zunächst sind die wesentlichen Abmessungen zur Berechnung der Konsole festzulegen. |
| Die Länge der Konsole bezieht sich bei geschraubtem Anschluss auf das Stirnblech, bei geschweißtem Anschluss auf den Stützenflansch. |
|
 |
|
| Analog wird der horizontale Abstand der Vertikallast Δa bestimmt. |
| Der vertikale Abstand der Horizontallast Δh wird vom oberen Konsolrand gemessen. |
| Mit den Abmessungen Δa und Δh können die Schnittgrößen in der Konsole bestimmt werden (s. Beschreibung der Ergebnisse). |
|
|
|
|
| geschweißter Anschluss |
 |
|
|
 |
|
Die wirksamen Nahtdicken der Schweißnähte
am oberen und unteren Flansch sowie am Steg beziehen sich auf
eine einzelne Naht. Es werden i.A. voll ausgeführte Kehlnähte
verwendet, die ober- und unterhalb der Flansche
(jedoch nicht umlaufend), sowie rechts und links vom Steg angeordnet sind. |
| Die Ausrundungen zwischen Steg und Flanschen sind ausgespart. |
Schweißnähte werden i.A.
sowohl für Zug- als auch für Druckbeanspruchung nachgewiesen.
Bei Drucknähten
kann ein Teil der Druckspannung über Kontakt abgetragen werden. |
Programmintern werden eine Reihe von Checks bzgl. der
Schweißnaht und der zu verbindenden Bleche
durchgeführt. |
| Hintergründe und Erläuterungen zum Nachweis
der Schweißverbindung finden Sie hier. |
|
| Die Konsole kann mittels einer Voute
im Anschlussbereich verstärkt sein (s.u.). |
|
|
|
|
| geschraubter Stirnblechanschluss |
 |
|
|
 |
|
| Stirnblech |
 |
|
Dicke und Breite des Blechs sind anzugeben, wobei die
Stirnblechbreite größer als die Flanschbreite des
Trägers sein muss. |
| Ist keine einheitliche Stahlsorte vereinbart (s. Register 1) wird an dieser Stelle diejenige für das Stirnblech festgelegt. |
Des Weiteren muss die Lage der Konsole auf dem
Stirnblech über die Überstandshöhen oberhalb und unterhalb
der Konsolflansche definiert werden. |
| Das Stirnblech kann bündig
mit der Konsole abschließen (Überstandshöhe =
0) oder auch im Bereich des Konsolflanschs enden (Überstandshöhe
< 0), wobei mindestens 20% der Flanschdicke bedeckt sein müssen. |
Die Stirnblechlänge setzt sich zusammen aus der
gesamten Konsolhöhe (ggf. einschl. Voute)
zzgl. der Überstandshöhen und wird im Eigenschaftsblatt angezeigt. |
|
| Schweißnähte |
 |
|
| Zur Beschreibung der Schweißnahtparameter
s. geschweißter Anschluss. |
|
| Schrauben |
 |
|
| Um eine Stirnblechverbindung nachzuweisen,
sind Schraubengröße, Festigkeitsklasse sowie ggf. Futterblechdicken anzugeben. |
| Bei beidseitiger Verbindung wird jeder Anschlussseite
eine eigene Schraubengröße/-festigkeit zugeordnet. |
|
|
|
Da die Beschreibung der Schraubenparameter für
Verbindungen nach EC3 programmübergreifend identisch ist,
wird auf die allgemeine Beschreibung der Schrauben verwiesen. |
| Bei Schrauben der Festigkeitsklassen 8.8 oder 10.9
wird vorausgesetzt, dass es sich um vorgespannte Schrauben (HV) handelt. |
| Für die Abschertragfähigkeit
der Schraube ist es von Belang, ob das Gewinde oder der Schaft in der Scherfuge liegt. |
| Futterbleche dienen der Verstärkung des Stützenflanschs
und werden i.A. zwischen Flansch und Schraubenmutter angeordnet. |
| Ist keine einheitliche Stahlsorte
vereinbart (s. Register 1), wird an dieser Stelle diejenige für
die
Futterbleche festgelegt. |
|
| Schraubenreihen |
 |
|
| Es kann eine beliebige Anzahl an Schraubenreihen
eingegeben werden, wobei die Nachweisregeln n. EC 3-1-8 nur zwei Schrauben
je Reihe zulassen. |
| Zur Anordnung der Schrauben auf dem Stirnblech sind
der Schraubenabstand zum seitlichen Rand des Stirnblechs sowie der Abstand
der ersten Reihe zum oberen Rand des Stirnblechs anzugeben. Weiterhin
sind bei mehr als einer Schraubenreihe die Abstände untereinander festzulegen. |
| Ist der Abstand der ersten Schraubenreihe zum oberen
Rand des Stirnblechs kleiner als die Überstandshöhe des
Stirnblechs oberhalb des Trägers, wird diese Reihe im Überstand angeordnet. |
| Entsprechendes gilt für die Schraubenreihe im Überstand
unterhalb des Trägers. |
| Es kann nur eine Schraubenreihe, die im Überstand
unter Zugbelastung steht, berechnet werden. |
| Die Schraubenreihen im Überstand des Druckflanschs werden ignoriert. |
|
| Die Schrauben sind auf Zug/Biegung und Schub
nachzuweisen. Idealerweise übernehmen die Zugschrauben die Biegung,
die Schrauben auf der Druckseite den Schub. Bei großer Belastung
müssen jedoch Schrauben beide Belastungsformen über
eine Interaktionsbeziehung tragen. |
| Die Schrauben sind jeweils einzeln als auch in einer
Schraubengruppe zu untersuchen. |
| Schraubengruppen werden - beginnend vom Zugrand - automatisch gebildet. |
|
| Die Schraubenabstände werden nach
EC 3-1-8, Tab. 3.3, überprüft und dokumentiert. |
Die Schweißnähte, die zur Bildung des Äquivalenten
T-Stummels (zusammengesetzter Querschnitt) vorhanden
sind, können traglastrelevant sein. Daher gehen sie in den Nachweis ein. |
| Die Tragfähigkeit
des Äquivalenten T-Stummels wird mit dem alternativen Verfahren
n. EC 3-1-8, Tab. 6.2 ermittelt. |
| Die Anordnung einer Schraubenreihe
im Überstand ohne korrespondierende Reihe zwischen den Trägerflanschen
bedingt eine reduzierte Tragfähigkeit des Äquivalenten Stummels (L-Stummel). |
| Der Anschluss wird auf Blockversagen
der Schrauben mit dem Stirnblech untersucht. |
| Ebenso wird die Tragfähigkeit des
Stirnblechs bzgl. Schub in die Anschlusstragfähigkeit integriert. |
| Hintergründe und Erläuterungen zum Nachweis
der Schraubenverbindung finden Sie hier. |
|
|
|
|
| Besonderheiten bei Vouten |
 |
|
|
 |
|
| Die Konsole kann über ihre gesamte Länge eine Voute
zur Verstärkung erhalten. |
| Der Neigungswinkel αv bezieht
sich auf die Senkrechte zur Stütze (die horizontale Achse). |
| Die Voute wird als gewalztes oder geschweißtes T-Profil
ausgeführt, wobei n. EC 3-1-8, 6.2.6.7(2) zu beachten ist |
 |
die Flanschdicke der Voute darf nicht kleiner als die der Konsole sein |
 |
die Flanschbreite der Voute darf nicht kleiner als die der Konsole sein |
 |
die Stegdicke der Voute darf nicht kleiner als die der Konsole sein |
 |
die Voutenneigung darf nicht größer als 45° sein |
|
|
Bei geschweißten Vouten wird
die Tragfähigkeit der Schweißnähte
zwischen Voutenflansch und -steg
nicht nachgewiesen. |
|
 |
|
| Bei Verwendung einer Voute wird der untere Querschnittsflansch ignoriert. |
| Bei geschweißtem Konsolprofil ist ein einheitlicher
Blechträger vorhanden, wobei die Abmessungen der Voute denen der Konsole entsprechen. |
| Es wird programmintern mit einem Profil gerechnet,
dessen Querschnittswerte wie folgt ermittelt werden |
|
|
|
| Sämtliche weiteren Querschnittswerte beziehen sich
auf diese Größen. |
Das interne Profil übernimmt die Herstellungsmaße (gewalzt:
Ausrundungsradius, geschweißt: Schweißnahtdicke)
des Konsolprofils. |
|
| Bei geschweißtem Konsolprofil wird die Tragfähigkeit
der Schweißnähte nicht nachgewiesen. |
|
|
|
|
| Lastträger |
 |
|
|
 |
|
| Die Konsole dient zur Auflagerung eines (Last-) Trägers,
der wiederum z.B. eine Kranbahn führt. |
| Da der Lastträger i.A. ebenfalls
ein Doppel-T-Profil ist, wird die Last aus dem Steg mit einer geringeren
Lasteinzugslänge als die Flanschbreite des Profils an die Konsole
übergeben. |
| Ist der Lastträger mit Rippen im Bereich der Lasteinleitung verstärkt, kann die Lasteinzugslänge vorgegeben werden. |
| Ohne Angabe eines Lastträgers ist die Lasteinzugslänge anzugeben. |
| Hintergründe und Erläuterungen zum Nachweis
der Lasteinleitung finden Sie hier. |
|
 |
| Im Programm 4H-EC3SK ist die Kranbahn nicht Gegenstand
der Betrachtung. |
| Ist der Nachweis der Lasteinleitung aktiviert,
wird im Programm 4H-EC3SK
die Querschnittstragfähigkeit (s. Träger-Stützenverbindung)
elastisch ermittelt. Dadurch entfällt der Nachweis im GZG. |
|
|
|
|
|
|
|
| Ermüdung |
 |
|
|
 |
|
| Für den Ermüdungsnachweis sind Schadensäquivalenzfaktoren anzugeben. |
| Sie resultieren aus der dynamischen Belastung (z.B.
Kranfahrten) und reduzieren die Schwingbreiten infolge Normal-
und Schubspannung. Bei λ = 1 erfolgt keine Reduktion. |
| Hintergründe und Erläuterungen zum Ermüdungsnachweis
finden Sie hier. |
|
 |
| Im Programm 4H-EC3SK
ist die Kranbahn nicht Gegenstand der Betrachtung. |
| Der Mittelspannungseinfluss wird vernachlässigt. |
| Die Begrenzung der Spannungsschwingbreiten
infolge häufiger Lasten erfolgt nicht. |
|
|
|
|
|
|
|
| Druckausgabe |
 |
|
| Die Druckausgabe kann durch die Ausdrucksteuerung beeinflusst werden. |
|
| Eingabeparameter |
 |
|
| Im Statikdokument wird zunächst eine maßstäbliche
Darstellung der eingegebenen Verbindung angelegt. |
| Die wesentlichen Abmessungen werden vermaßt. Ggf.
werden Detailausschnitte hinzugefügt. |
| Ist der Maßstab vom Anwender vorgegeben, wird
er in der Grafik protokolliert. |
|
 |
|
| Anschließend werden die Eingabeparameter ausgegeben. |
| Optional können zusätzliche Informationen
(z.B. die hinterlegten Rechenkennwerte der Profile, Stahlgüten,
Verbindungsmittel etc.) hinzugefügt werden. |
| Die zu bemessenden Schnittgrößen werden
mit Hinweis auf den Eingabetyp (s. Schnittgrößen)
lastfallweise ausgegeben. Nach Bedarf werden nun die der Bemessung
zu Grunde liegenden Materialsicherheitsbeiwerte angefügt. |
| Es folgt ein Datencheck zur Kontrolle
der Eingabedaten. |
|
| Die Berechnung wird für die Nachweise im GZT für jeden Lastfall durchgeführt.
Bei einer beidseitigen Verbindung erfolgt die
Berechnung je Seite. Die Ergebnisse werden schlussendlich tabellarisch
zusammengefasst. |
|
| Lastfallweise Berechnung der Konsole-Stützenverbindung |
 |
|
| Da sich bei gegenläufigen Momenten
das auf der Modellierung basierende System ändert, wird jeder
Lastfall separat untersucht. Intern wird bei negativen Momenten das
System an der Horizontalachse gespiegelt, so dass sich die Zugseite
immer 'oben' befindet. |
| Außerdem wird stets vorausgesetzt,
dass der Träger an der rechten Stützenseite befestigt ist.
Im Falle einer linksseitigen Verbindung wird das System daher an
der Vertikalachse gespiegelt. |
Da die Ausgabe der Rechenwege und die sich daraus ergebenden
Ergebnisse während des Berechnungsablaufs
erfolgt, sind diese
auch auf das ggf. gespiegelte System bezogen. Ein Hinweis erfolgt
bei Ausgabe der Bemessungsgrößen zu Anfang der entsprechenden
Lastfallberechnung. |
|
| Zunächst werden die Bemessungsgrößen aus der Lastfallkombination entwickelt. |
| Optional kann ein Querschnittsnachweis für die Anschlussprofile (Konsole, Stütze)
folgen. |
| Danach werden die anschlussspezifischen Grundkomponenten ausgewertet
und die Gesamttragfähigkeit
berechnet. |
Sind Schweißnähte im Anschluss vorgesehen,
werden die Schweißnähte als eigenes Tragsystem
(Linienquerschnitt) modelliert und deren Tragfähigkeit
nachgewiesen. |
| Anschließend werden die Rippen untersucht. |
| Die Ergebnisse werden lastfallweise und ggf. detailliert dargestellt. |
|
| Lastfallweise Berechnung der Lasteinleitung |
 |
|
| An derjenigen Stelle der Konsole, an der der Lastträger aufliegt, ist die lokale Beanspruchung durch die ggf. hohe konzentrierte Belastung aus dem Lastträger zu untersuchen. |
| Zunächst erfolgt der Nachweis der Stegpressung. |
| Sind Rippen zur Aussteifung der Konsole vorhanden, werden diese in dem Zuge mit untersucht. |
| Sind jedoch keine Rippen vorhanden, wird anschließend Querlastbeulen untersucht. |
| Die Ergebnisse werden lastfallweise und ggf. detailliert dargestellt. |
|
| Berechnung der Ermüdungstragfähigkeit |
 |
|
Der Ermüdungsnachweis wird sowohl an der Stelle der Lasteinleitung als auch an der Anschlussstelle
Konsole-Stütze geführt. |
| Aus den eingegebenen Lastkombinationen wird die maximale Schwingbreite an maßgebenden Kerbpunkten ermittelt und den Referenzgrößen gegenübergestellt. |
| Zunächst erfolgt der Nachweis an der Konsole-Stütze-Verbindung unter besonderer Beachtung der Kerbpunkte der Verbindungselemente Schrauben und Schweißnähte. |
| Anschließend wird der Nachweis an der Lasteinleitungsstelle geführt. |
| Die Ergebnisse werden ggf. detailliert für alle Kerbpunkte dargestellt. |
|
| Ergebnis |
 |
|
| Nach erfolgter Berechnung wird das Endergebnis aus
den Nachweisen im GZT sowie aus dem Ermüdungsnachweis mit dem
Hinweis auf den maßgebenden Nachweis protokolliert. |
|
 |
|
|
|
|
|
 |
|
 |
im fünften und sechsten Register sind die Masken zur Eingabe der Schnittgrößenkombinationen im Grenzzustand der Tragfähigkeit (für die Nachweise der
Konsole-Stützenverbindung und Lasteinleitung) sowie der Schnittgrößen im Grenzzustand der Ermüdung (für den Ermüdungsnachweis) eingegeben. |
|
|
 |
|
| Bild vergrößern |
 |
|
|
|
|
| Für den Nachweis der Konsole-Stützenverbindung sind die Schnittgrößen im GZT des Trägers b und der Stütze c anzugeben. |
| Für den Nachweis der Lasteinleitung sind nur die Schnittgrößen im GZT des Trägers b relevant. |
| Der Ermüdungsnachweis benötigt die Schnittgrößen im GZE des Trägers
b. |
|
| Das Programm 4H-EC3SK bietet zwei
Möglichkeiten zur Eingabe der Belastung an |
 |
| die Auflagerlast aus dem Lastträger wird als Belastung der Konsole eingegeben. Für den Nachweis der Konsole-Stützenverbindung sind zusätzlich die Stützenschnittgrößen im Schnittpunkt der
Systemachsen einzugeben. |
|
 |
| werden die Schnittgrößen
aus einem Tragwerks-Programm übernommen, sind häufig
nur die Schnittgrößen im Schnittpunkt der
Systemachsen von Konsole und Stütze verfügbar. |
| Wird die Konsole durch eine Vouten verstärkt,
können die Konsolschnittgrößen wahlweise auf die gevoutete oder ungevoutete
Trägerachse bezogen werden. |
|
|
|
| Es wird die Vorzeichendefinition der Statik vorausgesetzt. |
| Da die Konsole ein statisch bestimmter Kragarm ist, können die Trägerschnittgrößen aus der Belastung der Konsole berechnet werden (und umgekehrt). |
|
 |
|
| In Abhängigkeit des Eingabetyps werden die Masken für die Eingabe der
Schnittgrößenkombinationen
aktiviert. |
|
Beim Lasttyp Belastung der Konsole werden die Auflagerkräfte aus
dem Lastträger
FEd und HEd erwartet, sowie die Stützenschnittgrößen
im
Knoten j. |
 |
| einseitiger Anschluss: Stütze unten c1, Stütze
oben c2 |
|
 |
| beidseitiger Anschluss: Stütze unten c1, Stütze oben c2 |
|
|
|
| Beim Lasttyp Schnittgrößen
im Schnittpunkt der Systemachsen sind Schnittgrößen im Knoten j in allen Bemessungsschnitten einzugeben. |
 |
| einseitiger Anschluss: Träger b,
Stütze unten c1, Stütze oben c2 |
|
 |
beidseitiger Anschluss: Träger rechts b1, Träger
links b2,
Stütze unten c1, Stütze oben c2 |
|
|
|
| Zur Info ist die Wirkungsrichtung der Schnittgrößen im Register grafisch dargestellt (hier für eine rechtsseitige Konsole). |
| Zur Identifikation kann jeder Schnittgröße
eine Bezeichnung (Kurz-beschreibung) zugeordnet werden, die im Ausdruck aufgeführt wird. |
|
 |
|
| Schnittgrößen importieren |
 |
Detailnachweisprogramme zur Bemessung von Anschlüssen
(Träger/Stütze, Trägerstöße), Fußpunkten
(Stütze/Fundament) etc. benötigen
Schnittgrößenkombinationen, die häufig von einem Tragwerksprogramm
zur Verfügung gestellt werden. |
| Dabei handelt es sich i.d.R. um
eine Vielzahl von Kombinationen, die im betrachteten
Bemessungsschnitt des übergeordneten Tragwerkprogramms vorliegen
und in das Anschlussprogramm übernommen werden sollen. |
|
| pcae stellt neben der 'per Hand'-Eingabe
zwei verschiedene Mechanismen zur Verfügung, um Schnittgrößen
in das vorliegende Programm zu integrieren. |
|
 |
|
 |
| Import aus einem 4H-Programm |
|
| Der Schnittgrößenimport aus einem 4H-Programm kann nur erfolgen, wenn die Belastung als Schnittgrößen
im Schnittpunkt der Systemachsen eingegeben wird. |
| Voraussetzung zur Anwendung des DTE®-Import-Werkzeugs
ist, dass sich ein pcae-Programm
auf dem Rechner befindet, das Ergebnisdaten exportieren kann. |
| Da die Beschreibung des Schnittgrößenimports für Träger-Stützenanschlüsse programmübergreifend identisch ist, wird auf die
allgemeine Beschreibung des Schnittgrößenimports verwiesen. |
|
 |
| Das Programm 4H-EC3SK
berechnet nur Träger-Stützenverbindungen
mit durchlaufender Stütze. |
|
|
|
|
|
 |
| Import aus einer Text-Datei |
|
| Die Schnittgrößenkombinationen können
aus einer Text-Datei im ASCII-Format eingelesen werden. |
| Die Datensätze müssen in der Text-Datei in
einer bestimmten Form vorliegen; der entsprechende Hinweis wird bei
Betätigen des Einlese-Buttons gegeben. |
| Anschließend wird der
Dateiname einschl. Pfad der entsprechenden Datei abgefragt. |
| Es werden sämtliche vorhandenen Datensätze
eingelesen und in die Tabelle übernommen.
Bereits bestehende Tabellenzeilen bleiben erhalten. |
| Wenn keine Daten gelesen werden können, erfolgt eine entsprechende
Meldung am Bildschirm. |
|
|
|
|
|
|
 |
|
|
|
| Transformation der Teilschnittgrößen |
|
| Die Schnittgrößen
sind bei gevouteten Trägern auf die Systemachse des Trägers
bezogen. Daher werden zunächst die Schnittgrößen
in der Systemachse berechnet |
|
| Die Transformation der Schnittgrößen
aus dem linken Anschluss in das Rechenmodell erfolgt anschließend
mit |
|
| Die Schnittgrößen sind im Knotenpunkt der
Schwerachsen gegeben (KOS Statik). Für die Berechnung, werden sie zunächst
in die Anschluss-Schnittgrößen (KOS EC 3-1-8)
bezogen auf die Schwerachse des Trägers transformiert. |
|
| Die zur Transformation notwendigen Winkelinformationen
sind mit |
|
| gegeben, wobei der Neigungswinkel des Trägers im Programm 4H -EC3SK αb = 0 ist. |
| Die Abstände zur Bildung der Momente werden berechnet
zu |
|
. |
|
|
| Anschließend werden aus den Schnittgrößen
im Anschluss die Schnittgrößen senkrecht zur Anschlussebene
ermittelt. |
|
| Soll die Biege- und/oder Abschertragfähigkeit
mit den Grundkomponenten mit Teilschnittgrößen (überwiegende Normalkraftbeanspruchung)
nachgewiesen werden oder sind spezielle Nachweise z.B. der Stegsteifen
zu führen, sind die Teilschnittgrößen
in den Flanschen und Stegen zu ermitteln. |
| Die Teilschnittgrößen im Träger ergeben
sich zu |
|
| Die Teilschnittgrößen im Stützenstegfeld
ergeben sich zu |
|
| wobei bei geschraubten Verbindungen der
innere Hebelarm z dem äquivalenten Hebelarm zeq entspricht. |
| Zur Berechnung von zeq s. Rotationssteifigkeit. |
|
 |
|
|
|
 |
|
 |
das siebte Register gibt einen
sofortigen Überblick über die ermittelten Ergebnisse |
|
|
 |
|
| Bild vergrößern |
 |
|
|
|
| Zur sofortigen Kontrolle werden die Ergebnisse übersichtlich zusammengestellt. |
| Die Tragfähigkeiten der Konsole-Stützeverbindung bzw. Lasteinleitung werden im ersten Teil dieses Registers lastfallweise aufgelistet. Anschließend ist das Ergebnis des Ermüdungsnachweises angefügt. |
| Eine Box zeigt an, ob ein Fehler aufgetreten ist (rot ausgekreuzt), ob die Tragfähigkeit überschritten ist (roter Balken) oder wie
viel Reserve noch vorhanden ist (grüner Balken). |
| Zur genaueren Fehleranalyse oder zur Einschätzung der
Tragkomponenten werden Einzelberechnungsergebnisse ebenfalls protokolliert. |
|
| Werden mehr als fünf Lastkombinationen
berechnet, wird die Darstellung der Ergebnisse reduziert. |
| Die maximale Ausnutzung (= Gesamt)
wird zusätzlich am oberen Fensterrand protokolliert. |
Die Lastkombination, die für das Gesamtergebnis maßgebend
ist, wird markiert.
Über den Link kann die Ausgabe direkt
am Bildschirm eingesehen werden. |
| Wenn die Ursache des Fehlers nicht sofort ersichtlich ist, sollte
die Druckliste in der ausführlichen Ergebnisdarstellung geprüft werden. |
|
|
|
 |
|
| Die Komponentenmethode ermöglicht die Berechnung
beliebiger Anschlüsse von Doppel-T-Profilen für Tragwerksberechnungen
(EC 3-1-8, 6.1.1). |
Die Voraussetzungen für das Verfahren sowie die
zur Anwendung kommenden Grundkomponenten sind im
Kapitel Allgemeines beschrieben. |
| Im Programm 4H-EC3SK werden Träger-Stützenanschlüsse berechnet. |
Im EC 3-1-8, 5.3, ist geregelt, dass
beidseitige Träger-Stützenanschlüsse vereinfachend je Seite betrachtet
werden dürfen. Dementsprechend wird die Verbindung je Lastfall zweimal
(rechter Anschluss, linker Anschluss) berechnet.
Es ergeben sich
Tragfähigkeiten und Rotationssteifigkeiten je Seite. Im Folgenden
wird der Rechenweg eines
rechten Anschlusses dargelegt. |
Nach EC 3-1-8 wird die Biegetragfähigkeit des
Anschlusses aus den Tragfähigkeiten der einzelnen Grundkomponenten
ermittelt und der einwirkenden Bemessungsgröße
gegenübergestellt. |
| Für überwiegend normalkraftbeanspruchte Verbindungen werden aus der einwirkenden Belastung
die einzelnen Traganteile für jede Grundkomponente extrahiert
und den Tragfähigkeiten der einzelnen Grundkomponenten
gegenübergestellt. |
| Es wird die Vorgehensweise zur Bemessung
von geschraubten Stirnblech-
sowie geschweißten Verbindungen mit
der Komponentenmethode nach EC 3-1-8, 6.2.7, erläutert. |
| Die alternative Methode zur Berechnung der Grundkomponenten mit Teilschnittgrößen
wird nicht behandelt. |
|
|
| geschraubte Stirnblechverbindung |
 |
|
|
| Die Biege- und Zugtragfähigkeit
des Anschlusses auf Seite der |
 |
Stütze wird
mit den Grundkomponenten 1 bis
4 |
 |
des Trägers mit den Grundkomponenten
7, 8 und ggf. 20 |
 |
des Stirnblechs mit Grundkomponente
5 |
|
| ermittelt. |
|
| Die Tragfähigkeit
der Schrauben wird mit Gk 11 für Abscheren, Gk 12
für Lochleibung und ggf. Gk 10 für Zug ermittelt. |
|
| Die Tragfähigkeit der Schweißnähte zwischen
Träger und Stirnblech wird über den Linienquerschnitt mit einbezogen. |
|
|
|
 |
|
|
| Biegetragfähigkeit
mit der Komponentenmethode |
 |
|
| Nach EC 3-1-8, 6.2.7.2, wird die Biegetragfähigkeit
von Träger-Stützenanschlüssen oder
Trägerstößen mit geschraubten Stirnblechverbindungen
bestimmt mit |
|
|
|
| Im Überstand darf sich nur eine
Schraubenreihe befinden. |
Der Druckpunkt einer Stirnplattenverbindung
sollte im Zentrum des Spannungsblocks infolge der Druckkräfte liegen
(EC 3-1-8, 6.2.7.1(9)), vereinfachend in der Achse der Mittelebene des Trägerdruckflanschs
(EC 3-1-8, 6.2.7.2(2)). |
| Die Nummerierung der Schraubenreihen
geht von der Schraubenreihe aus, die am weitesten
vom Druckpunkt entfernt liegt (EC 3-1-8, 6.2.7.2(1)). |
Die wirksame Tragfähigkeit einer
Schraubenreihe r sollte als Minimum der Tragfähigkeiten
einer einzelnen Schraubenreihe der Gkn 3, 4, 5,
8 bestimmt werden, wobei ggf. noch Reduktionen aus den Gkn 1, 2, 7
vorzunehmen sind. |
Anschließend ist die Tragfähigkeit
der Schraubenreihe als Teil einer Gruppe von Schraubenreihen
der Gkn 3, 4, 5, 8
zu untersuchen; s. hierzu EC 3-1-8, 6.2.7.2(6-8). |
| Um ein mögliches Schraubenversagen
auszuschließen, ist die Forderung nach EC 3-1-8,
6.2.7.2(9), einzuhalten |
|
| Wird die wirksame Tragfähigkeit
einer zuerst berechneten Schraubenreihe x
größer als 1.9·Ft,Rd,
ist die wirksame Tragfähigkeit aller
weiteren Schraubenreihen r zu reduzieren,
um folgender Bedingung zu genügen |
|
 |
|
Optional kann die Schraubentragfähigkeit
vorab begrenzt werden, damit die o.a. Forderung nicht zum
Tragen kommt. |
|
|
| Es werden zunächst die minimalen Tragfähigkeiten
aus den maßgebenden Grundkomponenten ermittelt (Beispielberechnung). |
|
Nun erfolgen reihenweise die Abminderungen für Schraubenreihen als
Teil einer Schraubengruppe. |
| Da die Schraubengruppen einer Stütze
und eines Stirnblechs verschiedene Mitglieder haben
können, erfolgt die Ausgabe in separaten Blöcken. |
|
| Mit diesen Tragfähigkeiten
der einzelnen Schraubenreihen wird die Tragfähigkeit
des Anschlusses bei reiner Zugbelastung bestimmt. |
|
| Es folgen reihenweise die Abminderungen für einzelne Schraubenreihen
der Druck-/Schub-Komponenten. |
|
Für die jeweils
kleinste Tragkraft je Reihe wird überprüft,
ob die Annahme einer plastischen Schraubenkraft-
verteilung
gerechtfertigt ist. Wird in einer Reihe die Grenztragfähigkeit von
95% der Zugtragfähigkeit einer
Schraube überschritten,
müssen die Tragfähigkeiten der nachfolgenden
Schraubenreihen linearisiert werden. |
|
| Das Ergebnis wird schlussendlich protokolliert. |
|
 |
|
Jede der Grundkomponenten, die die Tragfähigkeit einer Schraubenreihe
herabgesetzt hat (gekennzeichnet durch
ein >-Zeichen), wird als mögliche Versagensquelle
des Anschlusses protokolliert. |
|
|
| Die Druck-Komponenten
liefern die Tragfähigkeit bei reiner Druckbeanspruchung. |
|
| Die Biegetragfähigkeit ergibt sich damit zu |
|
| und die Ausnutzung zu |
|
 |
|
| wobei das einwirkende Moment auf den Druckpunkt in der Anschlussebene
(bei Stirnblechverbindungen die Kontaktebene zwischen Stirnblech und Stütze
bzw. bei Stößen zwischen den Stirnblechen) bezogen ist. |
|
|
| Ist die einwirkende Normalkraft
größer als 5% der plastischen Normalkrafttragfähigkeit |
|
| wird nach EC 3-1-8, 6.2.7.1(3), die
konservative Näherung verwendet. |
|
 |
|
| wobei sich nun das einwirkende
Moment auf den Schwerpunkt (reines Moment ohne Normalkraft) bezieht. |
|
|
| Die entsprechenden Normalkrafttragfähigkeiten ergeben sich zu |
|
|
| Abscher-/Lochleibungstragfähigkeit
mit der Komponentenmethode |
 |
|
| Auch hier werden zunächst die
minimalen Tragfähigkeiten aus den maßgebenden Grundkomponenten ermittelt. |
|
| Nach EC 3-1-8, Tab. 3.4, reduziert sich die Tragfähigkeit
bei gleichzeitiger Wirkung von Querkraft und Zugnormalkraft
bei voller Ausnutzung der Biegetragfähigkeit zu |
|
| sodass sich die endgültigen Tragfähigkeiten
je Schraubenreihe ergeben zu |
|
| Die Abscher-Lochleibungstragfähigkeit ergibt sich damit zu |
|
| und die Ausnutzung zu |
|
|
| Schubtragfähigkeit |
 |
|
| Sowohl Stirnblech als auch Stützensteg sind für den Schub aus Querkraftbeanspruchung
zu untersuchen. |
| Die Tragfähigkeit
des Stirnblechs ergibt sich als Minimum der plastischen
Tragfähigkeit des Blechs und der Tragfähigkeit der Stegnähte. |
|
| Die Tragfähigkeit
des Stützenstegfelds ist bereits in der Biegetragfähigkeit
berücksichtigt. Für einen expliziten
Nachweis der Schubtragfähigkeit wird sie hier noch einmal aufgeführt |
|
|
|
|
|
|
|
| geschweißte Verbindung |
 |
|
| Die Biege- und Zugtragfähigkeit
des Anschlusses wird ermittelt auf Seite der |
 |
Stütze wird mit den Grundkomponenten
1 bis 4 |
|
 |
| Trägers mit Grundkomponente 7 (bei
Vouten alternativ mit Grundkomponente 20) |
|
|
|
Die Tragfähigkeit der Schweißnähte zwischen
Träger und Stütze wird über den Linienquer-
schnitt mit einbezogen. |
|
|
|
 |
|
|
| Biege- und Zugtragfähigkeit
mit der Komponentenmethode |
 |
|
| Nach EC 3-1-8, 6.2.7.1(4), wird die
Biegetragfähigkeit eines geschweißten Anschlusses bestimmt mit |
|
| Der Druckpunkt einer geschweißten
Verbindung sollte im Zentrum des Spannungsblocks
infolge der Druckkräfte liegen (EC 3-1-8,
6.2.7.1(9)), vereinfachend in der Achse der Mittelebene
des Druckflansches (EC 3-1-8, Bild 6.15a). |
Bei Trägerstößen werden
die Grundkomponenten, die die Stütze betreffen,
außer Betracht gelassen
(analog EC 3-1-8, 6.2.7.2(10). |
Die Zugtragfähigkeit ergibt sich
aus den Gkn 3 und 4 (Gk 4 nur bei nicht ausgesteiften
Stützenflanschen)
für den Zugflansch zu |
|
| Abminderungen aufgrund der Druck-/Schubtragfähigkeit der Profile |
|
| führen zur wirksamen Tragfähigkeit |
|
| mit der die Biegetragfähigkeit des Anschlusses zu |
|
| ermittelt wird. Die Tragfähigkeiten
infolge reiner Normalkraftbeanspruchung werden
analog der Stirnblech-Verbindung berechnet. |
|
Bei geschweißten Trägerstößen
ist die Tragfähigkeit der Verbindung nur durch
die Tragfähigkeit der
Schweißnähte gegeben. |
|
|
|
|
|
| Besonderheiten bei Vouten |
 |
|
| Beträgt die Höhe des Trägers
einschließlich Voute mehr als 600 mm, ist
nach EC 3-1-8, 6.2.6.7(1), i.d.R. der Beitrag des
Trägerstegs zur Tragfähigkeit bei Druckbeanspruchung
auf 20% zu begrenzen. |
| Programmintern wird die Stegdicke
zur Berechnung von Grundkomponente 7 (Tragfähigkeit
des Voutendruckflansches) auf 20% begrenzt. |
| Die Biegetragfähigkeit des Trägerquerschnitts
wird unter Vernachlässigung des zwischenliegenden Flansches berechnet. |
| Nach EC 3-1-8, 6.2.6.7(2), gelten für
Träger mit Vouten folgende Voraussetzungen |
|
 |
| die Stahlgüte der
Voute sollte mindestens der Stahlgüte
des Trägers entsprechen (programmintern gewährleistet) |
|
 |
| die Flanschabmessungen
und die Stegdicke der Voute sollten
nicht kleiner sein als die des Trägers |
|
 |
| der Winkel zwischen Voutenflansch
und Trägerflansch sollte nicht größer sein als 45° |
|
 |
| die Länge ss der steifen Auflagerung darf mit der
Schnittlänge des Voutenflansches
parallel zum Trägerflansch angesetzt werden |
|
|
|
| Am Anschluss Voute-Stütze ist
die Tragfähigkeit von Voutenflansch und -steg
mit Druck (Gk 7) maßgebend, am Anschluss Voute-Träger
muss nach EC 3-1-8, 6.2.6.7(3), die Tragfähigkeit
des Trägerstegs mit Querdruck (Gk 2) nachgewiesen
werden. Beide Grundkomponenten werden in der
speziellen Vouten-Grundkomponente 20 zusammengefasst. |
|
|
|
|
|
| Besonderheiten bei überwiegend normalkraftbeanspruchten Verbindungen |
 |
|
Bei überwiegend normalkraftbeanspruchten Verbindungen
ist der Trägerdruckflansch nicht mehr gedrückt bzw. der Zugflansch nicht mehr gezogen, d.h.
die Annahme, dass der Druckpunkt in der Mitte des Trägerflanschs liegt, ist
nicht mehr akzeptabel (Zug-/Druckverbindungen). |
| Auch gilt die Komponentenmethode
nach EC 3-1-8, 6.2.7, nur für biegebeanspruchte Verbindungen mit unbedeutender
Normalkraft (N ≤ 5% Npl). |
|
| Jedoch darf nach EC 3-1-8, 6.2.7.1(3),
eine Näherung verwendet werden, bei der Biege-
und Normalkraftbeanspruchung voneinander unabhängig ausgewertet
werden. Die Einzeltragfähigkeiten werden anschließend addiert. |
Daher wird für das einwirkende Biegemoment eine Biegetragfähigkeit
berechnet, die sich auf den unteren
Trägerflansch (bzw. bei
Flanschwinkelverbindungen auf den am unteren Trägerflansch anliegenden
Winkelschenkel) bezieht, und für die einwirkende Normalkraft eine
Normalkrafttragfähigkeit in der Systemachse (senkrecht zur Anschlussebene) ermittelt. |
| Bei geschraubten Anschlüssen
mit einer Schraubenreihe im unteren Überstand (auf der Druckseite)
wird diese letzte Reihe bei Ermittlung der Zugtragfähigkeit
im Unterschied zur Biegetragfähigkeit berücksichtigt. |
|
| Die alternative
Methode zur Berechnung der Grundkomponenten mit Teilschnittgrößen liefert i.A. günstigere Ergebnisse und wird im Standardfall für
überwiegend normalkraftbeanspruchte Lastkombinationen verwendet. |
|
|
|
|
|
 |
|
| Folgende Nachweise können geführt werden |
 |
Nachweis der Anschlusstragfähigkeit mit
der Komponentenmethode nach Eurocode 3 |
 |
... Schweißnähte am Träger (Nachweis über den Linienquerschnitt) |
 |
... Stegsteifen (Rippen) |
 |
... Querschnittstragfähigkeit |
|
|
| Die Ausnutzungen aus den durchgeführten Nachweisen
werden extremiert und anschließend sowohl lastfallweise als
auch im Gesamtergebnis ausgegeben. |
|
| Querschnittsnachweis |
 |
| Der Tragsicherheitsnachweis der offenen, dünnwandigen
Querschnitte kann nach den Nachweisverfahren |
 |
Elastisch-Elastisch (EC 3-1-1, 6.2.1(5)) |
 |
Elastisch-Plastisch (E-P) (EC 3-1-1, 6.2.1(6)) |
|
|
| geführt werden. |
|
| Beim Nachweisverfahren Elastisch-Elastisch werden die Schnittgrößen (Beanspruchungen) auf Grundlage
der Elastizitätstheorie bestimmt. Der Spannungsnachweis erfolgt
mit dem Fließkriterium aus EC 3-1-1, 6.2.1(5), Gl. 6.1. |
|
Beim Nachweisverfahren Elastisch-Plastisch werden die Schnittgrößen (Beanspruchungen) ebenfalls auf Grundlage
der Elastizitätstheorie bestimmt. Anschließend
wird mit Hilfe des Teilschnittgrößenverfahrens (TSV) mit Umlagerung
(s. Kindmann, R., Frickel, J.: Elastische und plastische
Querschnittstragfähigkeit, Grundlagen, Methoden, Berechnungsverfahren,
Beispiele, Verlag Ernst & Sohn, Berlin 2002) überprüft,
ob die Schnittgrößen vom Querschnitt unter Ausnutzung der
plastischen Reserven aufgenommen werden können (plastische Querschnittstragfähigkeit). |
| Dieses Berechnungsverfahren ist allgemeingültiger
als die in EC 3 angegebenen Interaktionen für spezielle Schnittgrößenkombinationen. |
|
| Die Grenzwerte grenz(c/t) werden je nach Nachweisverfahren
aus EC 3-1-1, 5.5.2, Tab.5.2, ermittelt. Dies entspricht der Überprüfung
der erforderlichen Klassifizierung des Querschnitts. |
| Ist das Nachweisverfahren Elastisch-Plastisch gewählt und lässt die Klassifizierung keinen plastischen
Nachweis zu, wird eine Fehlermeldung ausgegeben; dann sollte der elastische
Nachweis geführt werden. |
|
| Nachweis der Anschlusstragfähigkeit mit der Komponentenmethode |
 |
| Es können die |
 |
Biegetragfähigkeit |
 |
Zugtragfähigkeit |
 |
ggf. die kombinierte Biege-/Zugtragfähigkeit |
 |
Abscher-/Lochleibungstragfähigkeit |
|
| der Verbindung ausgewertet werden. |
|
| Nach EC 3-1-8, 6.2.7.1(1), gilt für den Bemessungswert des einwirkenden Moments |
|
Überschreitet jedoch die einwirkende Normalkraft
in dem angeschlossenen Bauteil 5% der plastischen Beanspruchbarkeit,
wird nach EC 3-1-8, 6.2.7.1(3), die folgende Näherung benutzt, wobei sich die
Momente auf den Druckpunkt und die Normalkräfte auf die Systemachse beziehen. |
|
| Die Abscher-/Lochleibungstragfähigkeit ergibt sich
zu |
|
|
| Nachweis der Schweißnähte |
 |
|
|
| Nachweis der Stegsteifen |
 |
|
|
|
|
 |
|
| Allgemeines |
 |
|
| Biegeträger wie z.B. die Auflagerkonsolen
eines Kranbahnträgers werden ebenso wie der Kranbahnträger selbst beansprucht
durch zweiachsige Biegung und Torsion. |
| Diese globale Belastung wird auf Grund
der hohen konzentrierten Einzellasten im Einleitungsbereich überlagert
mit erheblichen Zusatzbeanspruchungen aus
lokaler Druck-, Biege- und Schubbelastung. |
| Die konzentrierte Lasteinleitung erfordert
lokale Nachweise, um die Tragfähigkeit des Auflagerträgers
zu gewährleisten. |
|
|
| Im Folgenden werden die Spannungsnachweise
der Einzellast-einleitung anhand eines Beispiels
für eine Trägerkreuzung erläutert. |
| Ein Träger IPE 140 wird auf einen unversteiften
Träger IPE180 gelagert.
Die starre Lasteinleitungslänge
auf den Trägerflansch in Längsrichtung
des Trägers ergibt sich aus der
Geometrie des Lastträgers ss =
26.7 mm. In Querrichtung ergibt sich die
Lasteinbreitungsbreite aus der
Trägergeometrie zu ss' = 31.8 mm. |
| Die Belastung wird mit Fz,Ed = 75 kN angegeben. |
| Da der Auflagerträger eine Konsole ist, wird
im Träger an der Stelle der Lasteinleitung nur eine
Querkraft in Höhe der Belastung erzeugt. |
|
| Optional können Stegsteifen (Rippen)
angeordnet werden. In diesem Beispiel
werden beidseitig des Stegs zwischenliegende Rippen
der Dicke tst = 15 mm gewählt. |
|
 |
|
|
|
|
|
|
|
| Spannungsnachweis im GZG |
 |
|
Um das elastische Verhalten des Trägerprofils sicherzustellen,
sollten die Spannungen aus der Lasteinleitung
begrenzt werden mit |
|
| Die Schnittgrößen werden aus der maßgebenden charakteristischen
(= seltenen) Lastfallkombination ermittelt. |
Dabei werden die globalen
Spannungen σx,Ed,ser und τEd,ser mit den lokalen Spannungen σoz,Ed,ser und τo,Ed,ser
(für aufgesetzte Brückenlaufkrane im Steg) bzw. σux,Ed,ser und σuy,Ed,ser (für
Hängekrane/Unterflanschkatzen im Unterflansch, Nachweis der Unterflanschbiegung) überlagert. |
Für aufgesetzte Brückenlaufkrane kann die Biegespannung σT,Ed infolge Exzentrizität der Radlasten
vernachlässigt werden. |
| Der Materialsicherheitsbeiwert wird i.A. mit γM,ser = 1.0 angenommen. |
|
 |
| Wird der Nachweis der Querschnittstragfähigkeit
als elastischer Spannungsnachweis ausgeführt, kann dieser
Nachweis entfallen. |
|
|
|
|
|
|
|
|
| Spannungsnachweis im GZT |
 |
|
| Der Nachweis der Stegpressung wird am Anschnitt
des Stegs zur Flanschausrundung geführt. |
| Die Länge der starren
Lasteinleitung in Längsrichtung vergrößert
sich am Steganschnitt auf sw = 60.7 mm. |
| Zur Info wird die Lagerpressung
angegeben, um sie ggf. separat überprüfen zu können. |
|
| Damit lässt sich die Spannung aus der lokalen Beanspruchung
berechnen und nachweisen. |
|
Die maximale Stegpressung ergibt sich aus der Überlagerung
der lokalen Einzellastspannung mit den
Biegespannungen im GZT. |
| Für
die Schnittgrößen aus der Längsbelastung
des Trägers (hier nur Querkraft) wird der Vergleichsspannungsnachweis
nach v. Mises geführt. |
Platten- und Schubbeulen werden kontrolliert. |
|
| Die maximale Ausnutzung wird protokolliert. |
|
|
|
|
|
|
| Nachweis der Stegsteifen |
 |
|
| Wenn der Nachweis nicht erfolgreich geführt werden
kann, muss die Lasteinleitungsstelle verstärkt werden, um die
lokalen Spannungen abzuführen. |
| Die Verstärkung kann mit
zwischenliegenden Stegsteifen (dreiseitiger
Anschluss an beiden Flanschen und Steg) erfolgen. |
|
|
| Für das Beispiel ergibt sich folgender Berechnungsablauf |
|
| Die Spannungsnachweise können
nun für eine reduzierte Querbelastung geführt werden. |
|
|
|
|
|
|
| Nachweis Querlastbeulen |
 |
|
| Werden keine Stegsteifen angeordnet ist Querlastbeulen nachzuweisen. |
| Beschreibung
der Nachweisführung des Querlastbeulens
s.u. |
|
|
|
| Für das Beispiel ergibt sich folgender Berechnungsablauf |
|
| Der Interaktionsnachweis wird mit
den Ausnutzungen aus Querlast und Vergleichsspannung geführt. |
|
|
|
|
|
|
 |
|
Der Nachweis der rippenlosen Lasteinleitung
wird geführt, wenn keine zwischenliegenden Rippen im Bereich der
Querlast angeordnet sind. |
Voraussetzung: Der Trägerquerschnitt
ist nicht beulgefährdet, d.h. Platten- und Schubbeulen sind ausgeschlossen
bzw. werden nicht untersucht. |
| Querlasten werden über die Flansche in den Steg eingeleitet.
Es werden drei Arten der Lasteinleitung (ohne Quersteifen) unterschieden,
die zu unterschiedlichen Beulwerten führen. |
|
|
|
| Bei einer Konsole ist nur Typ c (freies
Trägerende ohne Steifen) relevant. |
|
| Bemessungswert der Beanspruchbarkeit |
|
|
| Der Abminderungsfaktor infolge Stegbeulen
bei Querlasten wird nach NA-DE berechnet mit |
|
|
| Nachweis |
|
|
|
|
|
|
| Interaktionen |
 |
|
| Interaktion zwischen
Querbelastung, Biegemoment und Normalkraft |
|
|
| Wirkt eine Querlast auf den Zugflansch, ist der Interaktionsnachweis
nicht zu führen. Allerdings ist ein elastischer Spannungsnachweis erforderlich. |
|
| Interaktion zwischen
Querbelastung und Querkraft (nur NA-DE) |
|
|
|
|
|
|
|
|
|
 |
|
| Im Folgenden wird die Berechnung einer Stahlkonsole anhand des Beispiels 2.4: Kranbahnträgerauflager (aus Beispiele zur Bemessung von Stahltragwerken nach
DIN EN 1993 Eurocode 3, bauforumstahl e.V. (s. Literatur) vorgestellt. |
| Es werden die Nachweise der Tragfähigkeit (Lasteinleitung und Träger-Stützenverbindung) und Betriebsfestigkeit (Ermüdung) für eine einachsige Belastungssituation geführt. |
| Der Lastträger (hier: ein Kranbahnträger)
wird nicht nachgewiesen. |
| Hintergründe zur dargestellten Berechnung finden Sie hier. |
|
| Konsole HE200A,
Stütze IPE500, S235, Fs+v,Ed = 89 kN,
Fa,Ed = 61,5 kN, FEd,GZE = 56.91
kN / 0.0, Δa = 205 mm |
 |
|
|
| Die Konsole ist mit 5 mm Kehlnähten an die Stütze geschweißt. In Höhe der Flansche sind Stützensteifen angeordnet. |
| Der Lastträger ist auf der Konsole mit Schrauben befestigt. Da bei einachsiger Beanspruchung die Schraubenverbindung nicht belastet ist, wird sie nicht dargestellt und nachgewiesen. |
| Die Lasteinleitung in die Konsole erfolgt über eine Quersteife. |
| Im Grenzzustand der Tragfähigkeit werden die ständig und veränderliche
(Fs+v,Ed) sowie die außergewöhnliche Bemessungssituation (Fa,Ed) untersucht. |
| Der Ermüdungsnachweis erfolgt für die Schwingbreite aus FEd,GZE vorhanden / nicht vorhanden. |
|
|
| Konsole-Stützenverbindung |
 |
|
| Die Berechnung wird beispielhaft
für Lk 1: Fs+v,Ed = 89 kN gezeigt. |
Die Bemessungskräfte aus
dem Lastträger werden in Anschlussschnittgrößen umgerechnet.
Mit dem Abstand (hc - zc) + Δa = 225 + 205 = 430 mm ergeben sich zunächst
für die Schnittgrößen im Schnittpunkt
der Systemachsen von Konsole und Stütze |
|
aus denen die Anschlussgrößen
(Hebelarm (hc - zc) = 225 mm) berechnet werden.
Es ist zu beachten, dass der Nachweis der Träger-Stützenverbindung
im EC3-Koordinatensystem erfolgt. |
| In diesem Beispiel liegt keine Horizontallast vor, die mit zb + Δh in die Berechnung des Moments einfließt. |
| Die Bemessungsgrößen wirken senkrecht zur Anschlussebene. |
|
| Querschnittsnachweis |
| Zunächst wird das Konsolprofil
an der Anschlussstelle elastisch nachgewiesen. |
| Das c/t-Verhältnis gilt als vereinfachter Beulnachweis. |
|
| Bei Angabe von Stützenschnittgrößen
(hier nicht vorhanden) wird das Stützenprofil ebenfalls nachgewiesen. |
|
| Komponentenmethode |
| Die Berechnung der Verbindung erfolgt über die Komponentenmethode n.
EC 3-1-8. Bei einem geschweißten Anschluss
sind die Grundkomponenten Gk1, Gk2, Gk3 und Gk7 von Belang. |
| Die Schweißverbindung selber
wird über den Linienquerschnitt nachgewiesen (s.u.). |
| Die Grundkomponenten beschreiben separate Beanspruchungssituationen, für
die Tragfähigkeiten ermittelt werden.
Aus ihnen ergeben sich die Biege- und Schubtragfähigkeit,
die den einwirkenden Schnittgrößen gegenübergestellt werden. |
| Auf eine ausführliche Darstellung
der Berechnung wird an dieser Stelle verzichtet. |
|
Für die Biegetragfähigkeit
wird die maßgebende Zugtragfähigkeit im oberen Flansch ermittelt.
Sie darf nicht größer sein, als die Tragfähigkeit aller Grundkomponenten. |
| Die Biegetragfähigkeit
ergibt sich aus der Multiplikation der Zugtragfähigkeit
mit dem Hebelarm z. |
|
| Die Schubtragfähigkeit wird
im Stützenflansch und -steg berechnet. |
|
| Die Nachweise erfolgen für die Bemessungsgrößen. |
|
| Schweißnahtnachweis |
| Die Schweißverbindung wird über den Linienquerschnitt nachgewiesen.
Dafür bilden die Schweißnähte ein eigenes dünnwandiges
Profil, das die Schnittgrößen überträgt.
Vereinfachend und auf der sicheren Seite liegend werden die Schweißnähte
in den Ausrundungen und an den Flanschenden nicht berücksichtigt. |
|
Aus den Bemessungsgrößen ergeben sich für die Nähte des Linienquerschnitts
Schnittgrößen und daraus
zugehörige Spannungen. |
|
| Die Spannungen werden mit dem vereinfachten Verfahren nachgewiesen. |
|
| Nachweis der Stegsteifen |
| Gerade bei hoch belasteten Konsolen ist es sinnvoll und z.T. notwendig, den Steg
und das Schubfeld der Stütze durch zwischenliegende Steifen (Rippen) zu entlasten. |
| Am Beispiel der Drucksteife wird der Rechenweg aufgezeigt. |
| Die Beanspruchung der Steife ergibt sich aus der Teilschnittgröße
Nb,c zzgl. dem Anteil aus Querkraft |
|
| Für das dreiseitig angeschweißte Blech werden zunächst der Querschnitt |
|
| und dann die Schweißnähte an Flansch und Steg nachgewiesen. |
|
| Die maximale Ausnutzung dieses Nachweispakets ergibt |
|
|
|
|
|
| Nachweis der Lasteinleitung |
 |
|
| Die Berechnung wird beispielhaft
für Lk 1: Fs+v,Ed = 89 kN gezeigt. |
| Die Belastung fließt aus dem Steg des Lastträgers in den Steg der Konsole, so dass sich die starre Lasteinzugslänge bezogen auf den Steganschnitt ergibt von |
|
| Nachweis der Stegpressung |
|
| Die Einzellast wirkt lokal auf den Konsolflansch und -steg, wobei sich am Steganschnitt die größten Querspannungen ergeben. |
|
| Diese sind mit den Schnittgrößen in der Konsole zu überlagern und nachzuweisen. |
| Analog dem Nachweis der Konsole-Stützeverbindung werden die Bemessungskräfte aus
den Anschlussschnittgrößen
umgerechnet. Da die Konsole ein Kragarm ist, ergibt sich für dieses Beispiel nur eine Querkraft |
|
| Der Vergleichsspannungsnachweis enthält hier nur Anteile aus Querlast- und Schubspannung im Steg. |
|
| Nachweis des Querlastbeulens |
|
Sind keine Stegsteifen angeordnet, ist nachzuweisen, dass der Konsolsteg unter der rippenlosen
Lasteinleitung nicht ausbeult. |
| Das Beulfeld ist der Steg (lichte Steghöhe hw). Der Beulwert wird berechnet für Lasten, die in der Nähe des Trägerendes ohne Quersteifen eingeleitet werden und mit der Querkraft im Gleichgewicht stehen (Typ c). |
|
| Lässt sich der Nachweis der Stegpressung oder des Querlastbeulens nicht erbringen, sind Quersteifen erforderlich, die einen Teil der Querlast übernehmen. |
|
| Nachweis der Quersteifen |
| Der Nachweis der Quersteifen wird analog dem Nachweis der Stegsteifen (s.o.) geführt. |
| Wenn die Quersteifen nicht versagen (UR ≤ 1), ist nur der Anteil der Querlast, der direkt in den Steg geht, bei der Stegpressung zu berücksichtigen. |
| Versagen hingegen die Quersteifen
bei der vollen Last (UR > 1),
können sie immerhin einen Teil aufnehmen.
Der Steg ist für die Restlast nachzuweisen. |
| Im Beispiel wurden Quersteifen angeordnet, die die volle Querlast aufnehmen können, sodass der Steg nur für die geringe Querlast Fz,Ed = 18.9 kN nachzuweisen ist. Berechnungsweg s.o. |
|
| Die maximale Ausnutzung dieses Nachweises ergibt |
|
|
|
|
|
| Nachweis der Ermüdung |
 |
|
| Die Konsole wird durch den Lastträger dynamisch beansprucht. |
| Daher ist ein Ermüdungsnachweis erforderlich. Er wird an der Lasteinleitungsstelle
direkt unter dem Lastträger und für die Verbindung Konsole-Stütze geführt. |
|
| Ermüdung der Verbindung Konsole-Stütze |
| An ausgewählten Stellen der Verbindung erzeugen Kerbpunkte einen
möglichen Versagensfall. Da die Belastung einachsig und der Anschluss symmetrisch sind,
werden nur die linksseitigen Kerbpunkte betrachtet.
Sie befinden sich am Profil, am Blech (hier Stützenflansch) und an den Verbindungselementen
(hier Schweißnaht). |
|
| Es werden zwei Lastkombinationen untersucht |
|
| Die weitere Berechnung wird beispielhaft für Pkt. 21 (maßgebender
Kerbpunkt) gezeigt. |
| Für jede Lastkombination werden aus den elastischen
Spannungen die Spannungsschwingbreiten berechnet |
|
| Mit den Schadensäquivalenzfaktoren werden die Spannungsschwingbreiten für den
Nachweis der Ermüdung berechnet, |
|
| die den zulässigen Bemessungskerbspannungen |
|
| gegenübergestellt werden. |
|
| Die maximale Ausnutzung des maßgebenden Kerbpunkts ergibt |
|
|
| Ermüdung des Konsolprofils |
| An der Lasteinleitungsstelle wird das Konsolprofil durch Quersteifen verstärkt.
Daher werden neben den Kerbpunkten am Profil die Ansatzpunkte der Schweißnähte der Quersteifen
betrachtet. |
|
| Es ergeben sich zwei Lastkombinationen,
die nur die Querkraft Vz enthalten |
|
| Am Ort der Lasteinleitung wirkt bzgl. einer Lasteinzugslänge sw die lokale Einzellast, die am Steganschnitt
(Pkt. 13) die Querspannung Δσoz und τo erzeugt |
|
| Die weitere Berechnung erfolgt analog. |
| Für den maßgebenden Kerbpunkt 13 ergibt sich |
|
| und damit |
|
| Daraus folgt die maximale Ausnutzung des
maßgebenden Kerbpunkts für diesen Nachweisort |
|
|
|
|
|
| Endergebnis |
 |
|
| Das Ergebnis aller Nachweise wird ausgegeben, der maßgebende
Nachweis ist gekennzeichnet. |
|
|
|
|
|
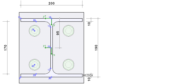
| Hinweise zu einer Schraubenverbindung |
 |
|
| Bei Bedarf (z.B. bei nachträglichem
Einbau) kann die Konsole mittels einer Stirnblechverbindung
an die Stütze angeschraubt werden. |
| Das Beispiel wurde modifiziert, indem ein 20 mm Stirnblech mit
2 x 2 Schrauben M20 angebracht wird. |
|
|
| Für die Konsole-Stützenverbindung sind
dann die Grundkomponenten 1,2,3,4,5,7,8,10,11,12 auszuwerten. |
| Es sind nur Zug-Schrauben relevant. Die Biegetragfähigkeit
wird beeinflusst von deren Anordnung bezogen
auf den Druckpunkt in Mitte des Druckflanschs |
|
| Die Auswertung der Grundkomponenten ergibt unter Einhaltung der Regeln n. EC
3-1-8, 6.2.7.2 die Tragfähigkeiten je Schraubenreihe, mit denen die Biegetragfähigkeit ermittelt wird, sowie die Schubtragfähigkeiten von Stirnblech und Stützensteg, |
|
| die den einwirkenden Schnittgrößen gegenübergestellt werden |
|
|
| Für den Ermüdungsnachweis
der Verbindung Konsole-Stütze sind
die Spannungen in Stirnblech, Schweißnähten und Schrauben zu bestimmen. |
|
| Die Bemessungsgrößen werden am Stirnblech ermittelt. |
|
| Die Berechnung der Spannungen
in den Kerbpunkten von Blech und Schweißnähten
erfolgt analog der Schweißverbindung (s.o.). |
Die Schraubenverbindung generiert Kerbpunkte im Stirnblech / Stützenflansch und in der Schraube selber
(z.B. Pkt. 27 und 28). |
|
Die Schraubenkräfte Fsc,i werden unter der Annahme berechnet, dass sich der Drehpunkt des Moments im Druckpunkt (Mittelpunkt des Druckflanschs) befindet. |
|
Der weitere Berechnungsablauf erfolgt analog dem der geschweißten Verbindung und ergibt für den
maßgebenden Kerbpunkt |
|
|
|
|
|
|
 |
|
 |